満室‐入居待ち登録受付中! プレミアムガレージハウス『SAGAMIHARA SIX』(神奈川県相模原市)
-
外観
1階ガレージ
2階居室部分
2階居住部分
プレミアムガレージハウス『SAGAMIHARA SIX』(神奈川県相模原市)
- 所在地
- 神奈川県相模原市中央区相模原6丁目
- 構造及び階数
- 軽量鉄骨造2階建
- 総戸数
- 4棟12戸
- 賃料
- A-1~A-3号室:入居中
B-1~B-3号室:入居中
C-1~C-3号室:入居中
D-1~D-3号室:入居中
- 賃貸条件等
-
礼金:賃料1ヶ月
敷金:賃料1ヶ月
仲介手数料:賃料1.1ヶ月(税込)
家賃保証会社保証料:
賃料+共益費の40%(非課税)(入居時)
賃料+共益費の1%(非課税)(月額)
借家人賠償責任保険加入料・火災保険加入料:20,000円(非課税)/2年間
鍵交換代:22,000円(税込)
退去時清掃費用:標準1,200円/㎡(税込)
- 特徴
-
・SECOMのホームセキュリティ(利用料別途)
・トランクルーム・ストレージ・物置・駐車場利用に便利
・CATV・インターネットサービス利用料無料(J:COM)
- 建築年月(築年数)
- 2019年2月(築7年)
- アクセス
-
JR横浜線「相模原駅」まで850m(徒歩11分)
国道16号(八王子バイパス)「相原IC」まで5.9km(車で20分)
- 周辺環境
-
・「さんはぜ通り(商店街)」まで300m(徒歩4分)
・周辺にコンビニ・スーパー・ドラックストア・飲食店あり
・静かな住宅街、週末のガレージライフ利用に便利
- 入居可能時期
- -
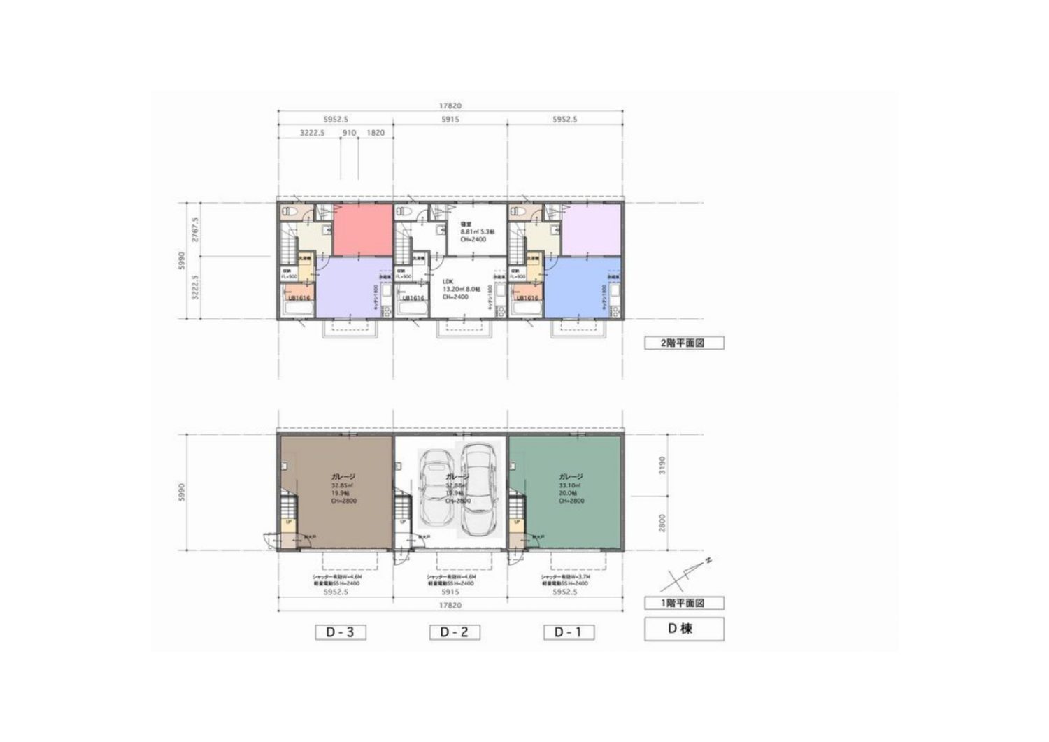
A棟・D棟:車2台分収容可能ガレージ+1LDKの居住スペース+屋外専用一時駐車スペース(車1台分)】
- 1階間取り
- ガレージ 幅芯々約5.0m×奥行芯々約5.9m
シャッター開口部
【A-1・A-2・D-2・D-3】 幅約4.5m×高さ約2.4m
【A-3・D-1】 幅約3.7m×高さ約2.4m
電動シャッターリモコン、ガレージ内水道(給湯付)、コンセント、EV充電用コンセント
- 2階間取り
- 【A-1・A-2・D-2・D-3】 LDK 8.1帖、クローゼット付洋室 5.4帖
【A-3・D-1】 LDK 8.2帖、クローゼット付洋室 5.5帖
ユニットバス(追焚き機能付・1616サイズ)、独立洗面化粧台、トイレ、
システムキッチン(2口コンロ)
B棟・C棟:車2台分収容可能ガレージ+1Rの居住スペース+屋外専用一時駐車スペース(車1台分)】
- 1階間取り
- ガレージ 幅芯々約5.0m×奥行芯々約5.9m
シャッター開口部
【B-1・B-2・C-2・C-3】 幅約4.5m×高さ約2.4m
【B-3・C-1】 幅約3.7m×高さ約2.4m
電動シャッターリモコン、ガレージ内水道(給湯付)、コンセント、EV充電用コンセント
- 2階間取り
- 【B-1・B-2・C-2・C-3】1R 13.8帖
【B-3・C-1】1R 14帖
ユニットバス(追焚き機能付・1616サイズ)、独立洗面化粧台、トイレ、
システムキッチン(2口コンロ)
※ご入居にあたり家主様の審査があります。
※上記内容と現況に相違がある場合には現況を優先します。
見取り図




